联系我们
|
HAIER.COM
|
CCR.COM
|
职位搜索
中文
|
English
整体解决方案
超市
冷藏立柜
服务柜
冷冻柜
会员店重载柜
SPI系列
便利店
灵越系列
灵境无霜系列
品悦系列
卓越系列
灵动系列
幻冷系列
冷库
冷凝机组
并联机组
换热器系列
双螺杆压缩机系列
活塞压缩机系列
CO2
CO2冷/热综合应用
CO2经典案例
CO2热泵
工程管理
智慧工地
安装商培训管理体系
无忧服务
智慧云服务平台
智慧服务节能案例(商超)
智慧服务节能案例(冷库)
节能解决方案
全变频技术
二氧化碳技术
SPI系统
节能方案
公司介绍
关于海尔开利
关于CCR
关于海尔
联系我们
公共关系
公司新闻
成功案例
新品快讯
经销商园地
后补式冷柜
产品详情
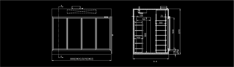
·专为便利店设计的小型冷库,展示存储两不误; ·中空玻璃门,隔热效果更佳; ·一体式通长门把手,方便不同身高消费者开启; ·补货门方向可选,利于店面布局; ·搁架多倾斜角度可调,以满足不同的需求; ·可选重力滑轨,可实现饮品的自动补货; ·高蒸发温度设计(-5度),更节能环保。
产品参数
产品尺寸
产品样册
产品图片
产品资料
资料下载
后补式冷柜
发布日期:2020-05-12
资料下载
后补式冷柜
卓越系列后补式冷库 场景图
卓越系列后补式冷库 精修图
资料下载
后补技术参数表
发布日期:2021年08月27日
在线客服
获取验证码
申请成为经销商
确定
仅限海尔开利经销商下载或观看
点此下载